Attefallshus Vibostugan Njuta Funkis 20-3
151 995 kr
Behöver du hjälp med ditt köp?Ring till våra produktrådgivare!

Njuta Funkis 20-3
151 995 kr
Tillverkningsvara - Levereras normalt inom 6-8 veckor.
Specialtransport Fraktkostnad beräknas i varukorgen.

Vibo Njuta Funkis 20-3 är ett attefallshus från Vibostugan som levereras i monteringssats med färdiga väggmoduler och gavelspetsar. Råspont och underlagspapp till tak samt golvspånskivor till golv ingår.
Varumärke
VibostuganBeskrivning
Vibo Njuta Funkis 20-3 är ett attefallshus från Vibostugan som levereras i monteringssats med färdiga väggmoduler och gavelspetsar. Råspont och underlagspapp till tak samt golvspånskivor till golv ingår.
Till huset kan man välja man t.ex. välja isoleringspaket och taksystem Plannja Trend inkl. vattenavrinning som tillval. De höga fönstren på ena gavelpartiet ger härligt ljusinsläpp.
Vibostugan tillverkas i Ambjörnarp, strax utanför Tranemo, en bit utanför Borås i Västergötland. Allt virke kommer från de svenska skogarna.
Fakta
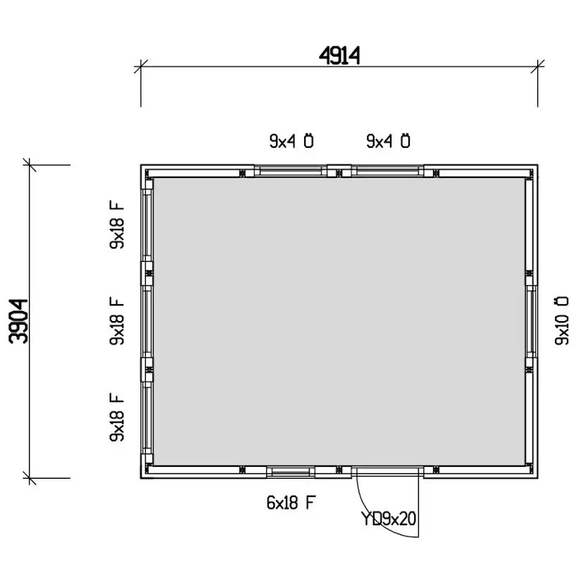
- Byggyta: 19,6 m²
- Takyta: 26,7 m²
- Taklängd: 5400 mm
- Takfallslängd: 4941 mm
- Taklutning: 10°
- Snözon: 3,5
- Totalhöjd: 3700 mm
- Högsta höjd invändigt: 2970 mm
- Lägsta höjd invändigt: 2335 mm
Detta ingår
- 1 st dörr 90x200 cm, avlångt glas, med trycke och lås
- 1 st fönster 60x180 cm, obehandlat, fast
- 3 st fönster 90x180 cm, obehandlade, fasta
- 1 st fönster 90x100 cm, obehandlat, öppningsbart
- 2 st fönster 90x40 cm, obehandlade, öppningsbara
OBS! Produktbilden kan vara extrautrustad. Attefallshuset levereras obehandlat.
Detta är en skrymmande produkt som kräver specialtransport i form av en stor lastbil eller kranbil. Leverans sker fram till porten om du bor i lägenhetshus eller fram till tomtgräns om du bor i villa. Du som kund ansvarar för att flytta godset från tomtgräns.
Vibostugan tillverkas i Ambjörnarp, strax utanför Tranemo, en bit utanför Borås i Västergötland. Allt virke kommer från de svenska skogarna.
Fakta
- Byggyta: 19,6 m²
- Takyta: 26,7 m²
- Taklängd: 5400 mm
- Takfallslängd: 4941 mm
- Taklutning: 10°
- Snözon: 3,5
- Totalhöjd: 3700 mm
- Högsta höjd invändigt: 2970 mm
- Lägsta höjd invändigt: 2335 mm
Detta ingår
- 1 st dörr 90x200 cm, avlångt glas, med trycke och lås
- 1 st fönster 60x180 cm, obehandlat, fast
- 3 st fönster 90x180 cm, obehandlade, fasta
- 1 st fönster 90x100 cm, obehandlat, öppningsbart
- 2 st fönster 90x40 cm, obehandlade, öppningsbara
OBS! Produktbilden kan vara extrautrustad. Attefallshuset levereras obehandlat.
Detta är en skrymmande produkt som kräver specialtransport i form av en stor lastbil eller kranbil. Leverans sker fram till porten om du bor i lägenhetshus eller fram till tomtgräns om du bor i villa. Du som kund ansvarar för att flytta godset från tomtgräns.
Dokument
Egenskaper
| Varumärke | Vibostugan |
| Art.Nr. | 19604 |
| Färg | Obehandlad |
| Area | 19,6 m2 |
| Utförande | Monteringsfärdiga väggmoduler |
| Glas | 2-glas |
| Material | Trä |
| Takdesign | Pulpettak |
| Säsong | Året Runt |
| Serie | Njuta |
| Typ | Attefallshus |
| Väggtjocklek | 95+22 mm |
| Höjd | 3700 mm |
| Längd | 4914 mm |
| Loft | Nej |
| Max Snölast | 3,5 kg/m2 |
| Altan | Nej |
| Vikt | 2420 kg |
| Bredd | 3904 mm |
| EAN-nr | 7350105510847 |









